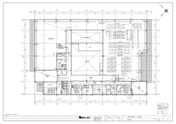
笠木42.7Φ*1.5(SUS304バフ♯400) Y 3 Y 1 Y 5 Y 7 750 親柱38Φ*1.5(SUS304バフ♯400) 2-D13 150 900 750 基礎コンクリート打ち放し仕上げ ツナギ27.2Φ*1.5(SUS304バフ♯400) スロープタイル100角貼り 2-D13 D10 120 100 50 150 座板t-2.0(SUS304バフ♯400) コンクリート打ち放し仕上げ D10 差筋用アンカー打ちD10@200 100 50 300 200 8450 D10 D10@200 D13 体育館設計GL D10@200 D13 1250 6000 8450 土間コンクリートt-120 鉄筋D10@200格子 砕石地業t-100 有効幅員:1250 ≒1370 200 土間コンクリートt-120 鉄筋D10@200格子 砕石地業t-100 A-A 断面図 A1版:S=1/30、A3版:S=1/60 アスファルト舗装 表層:密粒度アスコンt-50 下層路盤:CSスラグt-100 4350 600 ※現場合わせ 4100 上ル スロープタイル100*100貼(全面) 200 スロープタイル100*100貼(全面) A 立上基礎W-200コンクリート打放し 1250 ステンレス手摺バフ仕上げ♯400 防水形複層塗材E 梁位置に合わせる 200 上ル 防水形複層塗材E 200 スロープ勾配1/15以下 1250 立上基礎W-200コンクリート打放し 200角磁器質タイル張(既存) (クリンカータイル) ステンレス手摺バフ仕上げ♯400 200 4500 1250 スロープタイル100*100貼(全面) FL-20 スロープ AD シーリング シーリング アルミ引違サッシ 収納棚2 1520 LGS65@450下地 GB-R t-12.5+GB-R-H t-9.5張 マスチック塗材(MR-BE) 用具室1 用具室2 LGS65@450下地 GB-R t-12.5+GB-R-H t-9.5張マスチック塗材(MR-BE) ビニル床シートFS張t-2.5 玄関・ホ ール 倉 庫1 防滑性ビニル床シートFS張t-2.5 ビニル床シートFS張t-2.5 アルミ引違サッシ(カバー工法) 収納棚1 シューズボックス LGS65@450下地 GB-R t-12.5+GB-R-H t-9.5張マスチック塗材(MR-BE) シューズボックス 1 AW 1200 1 SD 1200 通路 1 SD 既存モルタル壁マスチック塗材(MR-BE) 収納棚3 防水形複層塗材E LGS100@450下地 GB-R t-12.5+GB-R-H t-9.5張マスチック塗材(MR-BE) 1600 アルミ引違サッシ(カバー工法) 6000 ALC版t-100縦張り 防水形複層塗材E アルミ引違サッシ 200角磁器質タイル張(既存) (クリンカータイル) 既存モルタル壁マスチック塗材(MR-BE) モルタル金コテ補修マスチック塗材(MR-BE) アルミ両引分戸 61 X 2 1295 2 AW 00 1 AW 1600 10 50 1275 A 防水形複層塗材E 2500 2 AW シーリング 排水ユニット144*2080*20 建具枠撤去部 ステンレスノンスリップW-35(ゴムタイヤ入り) モルタル補修 FL±0 シーリング 上ル 階段室 排水口2か所 下地調整材塗ビニル床シートFS張t-2.5 LGS65@450下地 GB-R t-12.5+GB-R-H t-9.5張マスチック塗材(MR-BE) 1600 1 AD 195 X 1 1455 スロープタイル100*100貼(全面) 2020 60 3 収納棚1 ≒280 スロープ勾配1/15以下 ALC版t-100縦張り 防水形複層塗材E シーリング 収納棚1 1250 スロープタイル100*100貼(全面) 2400 3方枠:米ツガ材t-25無公害木材保護塗料塗 1000 1600 5 AD 800 1600 額縁:米ツガ材t-25無公害木材保護塗料塗 1000 4 AD 4 AD N D C 展開方向 A (改修後)1階平面詳細図(玄関ホール、倉庫1、用具庫1) A1版:S=1/50、A3版:S=1/100 B 承 認 記 設 計 担 当 縮 尺 A1版:S=1/50 A3版:S=1/100 A1版:S=1/30 A3版:S=1/60 設計年月日 分類 № 工事名称 神栖市立神栖第二中学校体育館及び武道場耐震補強及び改修工事 図面名称 (改修後)1階平面詳細図(玄関ホール、倉庫1、用具室1、用具室2) 図面番号 A-25
© Copyright 2026