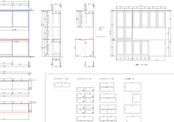
木製3連引戸 W2700 AW 3 WD 14 160 20 C1 C1 C1 C1 X3 X2 X4 X1

3,350
3,359
17,500
3,000
6,920
7,580
隣地境界線<24.209m>
N
1,280
0
4
8
,
2
600
3,380
600
2,590
600
870
180
土間コンクリートSGL+100
AW
エコキュート
AC室外機
3
中庭
AW
220
1,700
3
AW
3
Y2
C3
0
1
9
C1
CH2500
210
43
2
AW
ールレ
ャーチ
ク゚
ヒ
棚
り
飾
3
AW
9
100
1275
木枠下端=1FL+575
58
86
5
5
1
3
W
効
有
法
内
145
PS
0
0
7
>m
26
7.
91
<
線
界
境
地
隣
145
3,400
FIX
58
5.
2
B1P
5+
S2G
L
)
188
+
FL1 ④
(
①
3)
61+
L
1F
(
8)
40
L+F
1
(
4)
20+
L
1F
(
C2
0421
(1FL+1022)
⑤
UP
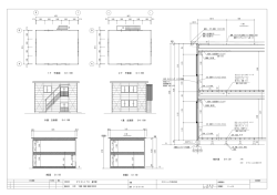
来客スペース
約6畳
中角35+白松11+PB12.5
③
②
S
0
0
6
C1
木製棚
80
5.
(1FL+1267) B12P
+
11
松
白
+
35
角
中
⑥
⑦
58
0
6
2
,
2
(1FL+1431)
⑧
3
131
冷蔵庫
額縁にあわせる
0
0
6
AW
2
AW
3
1FL
上部PS
給湯室
WD2 ノンケーシング
160
普通車
普通車
TS-WTH-AA1 鏡面
2003
0
5
3
0
5
7
W780H2023 0720鍵無
208
1
>m
26
.79
<1
線
界
境
地
隣
入隅あわせ
007
7,
20
0
1
0
,
2
ガラスFIX(別図参照)
160
006
ガラス窓を追加する
WD4 ノンケーシング 2箇所
倉 庫
05
9
TS-WCF-AMA 鏡面
56
収納
檜半柱t43
W1183H2306 1223
911
玄関ホール
スリッパ入れ
3
WD
14
0
8
6
00
27W
戸
引
3連
製
木
棚
駐車場倉庫
AW
3
9.5t
玄関
下地25+PB12.5
玄関
38
下地25+PB12.5
る
せ
わ
合
リ
チ
ド
イ
サ
両
GL+320
フロストスクリーン
アクリル製?
Slope
8
101
+130
0
2
1
38
H900
100
500
+100
GL+100
GL+420
5412 下駄箱
PS
160
0
0
6
W780H2023 0720J鍵
H80段差
580
AW
2
PB
水
耐
部
下 58
TS-WTH-AA1 鏡面
127
3
3
291
5m.
9
部
内
86
0
5
3
115
WD2 ノンケーシング
収納
m
トイレ
壁厚90
1FL
330
流し
0
5
3
5
3
7
GL+500
56
AW
AW
2
PS
21
13
CH3200
0
0
6
ミニキッチン
500×1050×1900
180
07
15
0
7
7
5
1
5
,
1
入隅あわせ
59
0
0
0
,
1
木製電動オーバースライダー
WD
C3
Y1
20
601
C1
CH2500
1
08 60
80 1
601
インターホンボックス
0
6
1
コンクリートにプラグ止め
0
2
6
AW-W=2602
Con開口=2642
CH2350
3,000
C2
SGL+290
5,245
6,920
1,655
7,580
7,580
17,500
①
展開方向
04
C1
680
④
0
6
1
外壁タイル張りt40
②
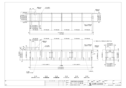
1階 125.76㎡
③
2
2
2
,
9
X1
特記事項
X2
X3
工事名称
X4
株式会社
山本様邸 (仮称)StoneFree 新築工事
1階平面図
山口建設一級建築士事務所
製図
n.yamaguti
日付
2009・08・26
広島県尾道市瀬戸田町名荷820-1
縮尺 S=1/50
一級建築士事務所 広島県知事登録 第07(1)第3091号
一級建築士 大臣登録第272261号 山口信彦
御承認印
設計監理
現場代理人
主任技術者
製図
図番
SF-12