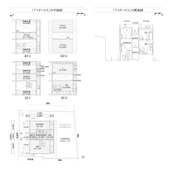
「CCハウス」の平面図 0 11 10 12 13 14 15 ROOM 3 16 ROOM 2 17 ROOM 1 BATH WC STORAGE 2F 8 1 7 6 5 4 3 LIVING 2 W ENT KITCHEN R DINING 1F 1 2m
© Copyright 2026