H=2400 (PDF形式:305KB) - e-DOOR

本体
オーク・ヘム
オーク・ヘム
50%艶消し
無垢・付き板
付き板
2本
1枚
長さは現場でカット
ケース加工は空錠で行いますので、表示錠の場合は現場での穴掘り込みと成ります。
L/R兼用に利用できます。
枠のL/Rはあります。
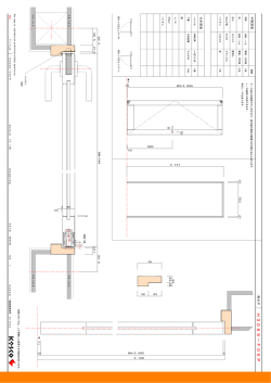
51
DW=745
DRAWING
調整丁番
82.5
24
1212
2
P.B.12.5
NO B案
55
3 12
1212
DATE 20101101
開き戸 幅木の厚みにより可動
40
▼CL
H3079-F07P
P.B.12.5
3
▼ FL
仕様に付いては、ご了解無しに変更する可能性があります。
KASCO 一級建築事務所 51053
P.B.12.5
5
個数
枠
#240
ナチュラル
ウォールナット
空
1/3 1/20
2,500
中国調達
仕上
ウレタン
1本
1個
茶
1-V2C-C-LW
1Set
AQ48
仕上げ色
パッキン
KAWAJUN
DHCW
日本調達
ハンドル
大安金属
ビス止 千鳥打ち
角パイプ 30x30
SCALE
43
12
丁番
錠
▼FL
パッキン
H3079-F07P
2,400
レール
現場取り付け
向かって右ヒンジーL
12125
TITLE
990
10
戸当り
パッキン
A案
53.5
82.5
向かって右ヒンジーR
P.B.12.5
P.B.12.5
A3
Any copy or reproduction prohibited without permission
6
49
DH=2,385
10
40
3
DH=2,385
10
12
本体
オーク・ヘム
オーク・ヘム
艶消し
無垢・付き板
付き板
2本
1枚
個数
枠
#240
DRAWING
長さは現場でカット
ケース加工は空錠で行いますので、表示錠の場合は現場での穴掘り込みと成ります。
L/R兼用に利用できます。
枠のL/Rはあります。
51
DW=745
2,500
中国調達
仕上
ナチュラル
1本
オスモ
茶
1個
AQ48
*-V2C-C-LW
3本
空
1/3 1/20
調整丁番
82.5
1212
24
P.B.12.5
NO 4
B案
55
3 12
1212
DATE 20101101
開き戸 幅木の厚みにより可動
▼CL
H3079-F07H
P.B.12.5
▼ FL
仕様に付いては、ご了解無しに変更する可能性があります。
KASCO 一級建築事務所 51053
P.B.12.5
5
仕上げ色
パッキン
KAWAJUN
SNS3D*40-SL
日本調達
ハンドル
中尾製作所
ビス止 千鳥打ち
角パイプ 30x30
SCALE
43
12
丁番
錠
▼FL
パッキン
H3079-F07H
2,400
レール
向かって右ヒンジーL
12125
TITLE
990
10
戸当り
パッキン
53.5
82.5
向かって右ヒンジーR
P.B.12.5
A案
現場取り付け
P.B.12.5
A3
Any copy or reproduction prohibited without permission
6
49
DH=2,385
10
40
3
DH=2,385
10
12
オーク・ヘム
付き板
付き板
1本
1枚
個数
本体
赤松集成
S14579OUT
▼FL
DW=980
1/3 1/20
バリアフリー用
DW=980
有効=845
1,060
SCALE
DRAWING
75
70
40
DATE 20101101
NO 20
15
19.4
引き戸 5.6
アルミ 1.2x15x15
S14579OUT
上 下
左 右
DWGHーMXA
▼ FL
仕様に付いては、ご了解無しに変更する可能性があります。
KASCO 一級建築事務所 51053
2
中国調達
枠
白色
1本
艶消し
E型
1.2x15x15
L= 980
1個
#240
パッキン
アルミ
No.267
仕上
振れ止め
BEST
2個
ナチュラル
取手
別途
DWGHーMXA
1本
オスモ
錠
大安金属
Vレール
シルバー
仕上げ色
戸車
大安金属
日本調達
レール
向かって右ヒンジーL
TITLE
2,400
戸当り
パッキン
40
70
向かって右ヒンジーR
A3
Any copy or reproduction prohibited without permission
DH=2,385
5
10
DH=2,385
5
13
105
13
105
引き残し線
枠
本体
#240
オーク・ヘム
オーク・ヘム
ナチュラル
艶消し
付き板
付き板
3本
1枚
個数
仕上
オスモ
茶色
▼FL
DW=860
DW=860
外観
有効800
SCALE
1/3 1/20
30
DRAWING
30
21
800
882
DATE 20101101
50
82
15
19.4
21
NO 21
5.6
2
引き戸 155
128.5
23.5
アルミ 1.2x15x15
F07S1-11
3
上 下
左 右
KASCO 一級建築事務所 51053
▼ FL
仕様に付いては、ご了解無しに変更する可能性があります。
DWGHーMXA
10
中国調達
仕上げ色
E型
1本
別途
2個
1.2x15x15
L= 860
取手
別途
DWGHーMXA
1本
アルミ
パッキン
振れ止め
錠
大安金属
Vレール
シルバー
日本調達
戸車
大安金属
向かって右ヒンジーL
27
F07S1-11
21
2,400
レール
21
TITLE
DH=2,385
5
戸当り
パッキン
向かって右ヒンジーR
A3
5
DH=2,385
5
40
5
78
57
20
12
Any copy or reproduction prohibited without permission
155
5
110
40
105
13
105
13
オーク・ヘム
付き板
付き板
3本
2枚
DW=860
外観
有効802
DW=860
SCALE
1/3 1/20
58
2,421
DRAWING
21
802
DW=860
1,662
DATE 20101101
21
5.6
引き違い戸
15
19.4
左 右
上 下
左 右
上 下
アルミ 1.2x15x15
S23079-F105
▼ FL
DWGHーMXA
仕様に付いては、ご了解無しに変更する可能性があります。
KASCO 一級建築事務所 51053
52.5
79
5.5
21
NO 22
10
個数
本体
オーク・ヘム
艶消し
▼FL
引き戸 F1051-S1R
2
中国調達
枠
#240
2本
仕上
茶色
2本
ナチュラル
E型
1.2x15x15
L= 860
4個
オスモ
パッキン
アルミ
YH500-98-*
仕上げ色
振れ止め
山口安製作所
日本調達
取手
4個
別途
DWGHーMXA
2本
錠
Vレール
シルバー
大安金属
大安金属
戸車
レール
向かって右ヒンジーL
21
TITLE
DH=2,385
5
21
2,400
戸当り
パッキン
79
58
向かって右ヒンジーR
A3
Any copy or reproduction prohibited without permission
12
DH=2,385
5
35
40
5
75
13
105
オーク・ヘム
艶消し
付き板
個数
1枚
1本
1個
DW=763
770
3
DW=763
1/3 1/20
美拉(中国)
DRAWING
380
現場加工
DATE 20101101
70
73.5
NO 31
折れ戸2IN B23079SIN
KASCO 一級建築事務所 51053
仕様に付いては、ご了解無しに変更する可能性があります。
▼ FL
12.5
中国調達
#240
茶色
5個
ナチュラル
E型
H230-C26/26T
オスモ
スガツネ
YH-700-76-SN
1個
4個
山口安製作所
OFD-3N
▼FL
380
SCALE
150
本体
枠
仕上
仕上げ色
パッキン
吊車
スライド丁番
折れ戸丁番
取手
アトム
日本調達
吊車
戸車
レール
向かって右ヒンジーL
3.5
B23079SIN
2,400
ピポット
パッキン
向かって右ヒンジーR
17.5
73.5
52.5
70
TITLE
Any copy or reproduction prohibited without permission
A3
DH=2,385
10
5
DH=2,380
10
30
101
990
本体
オーク・ヘム
オーク・ヘム
艶消し
付き板
付き板
1本
1枚
1個
35
35
DW=763
1/3 1/20
3
DW=763
770
美拉(中国)
DRAWING
380
DATE 20101101
70
73.5
NO 32
折れ戸2IN 11
9 165
7
12
17 13
B23079PIN
▼ FL
12.5
KASCO 一級建築事務所 51053
仕様に付いては、ご了解無しに変更する可能性があります。
48
個数
枠
#240
1本
YH-700-76-SN
1個
▼FL
380
SCALE
2
中国調達
仕上
茶色
1個
ナチュラル
E型
Wing Line770
5個
オスモ
パッキン
ヘティヒ
H230-C26/26T
仕上げ色
吊車
スガツネ
山口安製作所
DWLP
4個
スライド丁番
折れ戸丁番
取手
大安金属
日本調達
吊車
戸車
レール
35
向かって右ヒンジーL
21
4.5
B23079PIN
2,400
ピポット
パッキン
向かって右ヒンジーR
73.5
52.5
16.5
70
TITLE
Any copy or reproduction prohibited without permission
A3
DH=2,385
7
8
DH=2,380
7
30
101
993
中国調達
オーク・ヘム
#240
オスモ
E型
スガツネ
付き板
艶消し
ナチュラル
茶色
H230-C26/26T
個数
2枚
1本
2個
10個
2個
8個
YH-700-76-SN
2個
B46079SIN
▼FL
763
DW=1,529
1/3 1/20
美拉(中国)
SCALE
DW=1,529
3
DRAWING
763
DATE 20101101
現場加工
NO 36
折れ戸4IN 145.5
B46079SIN
45
KASCO 一級建築事務所 51053
仕様に付いては、ご了解無しに変更する可能性があります。
▼ FL
12.5
本体
枠
仕上
仕上げ色
パッキン
吊車
スライド丁番
折れ戸丁番
山口安製作所
OFD-3N
日本調達
取手
アトム
34
3.5
向かって右ヒンジーL
吊車
戸車
レール
145.5
89.5
TITLE
2,400
ピポット
パッキン
52.5
向かって右ヒンジーR
A3
Any copy or reproduction prohibited without permission
990
3
5
DH=2,385
10
DH=2,385
10
30
90
本体
オーク・ヘム
オーク・ヘム
艶消し
付き板
個数
35
763
DATE 20101101
35
NO 37
折れ戸4IN 145.5
11
9 165
7
12
17 13
B46079PIN
▼ FL
KASCO 一級建築事務所 51053
仕様に付いては、ご了解無しに変更する可能性があります。
48
2枚
1本
1本
35
DW=1,529
35
DW=1,529
3
DRAWING
2
中国調達
枠
#240
茶色
10個
ナチュラル
E型
H230-C26/26T
オスモ
スガツネ
2個
8個
YH-700-76-SN
2個
▼FL
763
1/3 1/20
美拉(中国)
SCALE
12.5
8
仕上
仕上げ色
パッキン
吊車
スライド丁番
折れ戸丁番
山口安製作所
DWLP
日本調達
取手
大安金属
35
向かって右ヒンジーL
吊車
戸車
レール
93
4.5
B46079PIN
2,400
ピポット
パッキン
145.5
向かって右ヒンジーR
52.5
88.5
TITLE
Any copy or reproduction prohibited without permission
A3
DH=2,385
10
3
DH=2,380
7
30
90
990