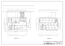
一括 点検口 ▽延焼のおそれのある部分 二重壁(PB+ケイカル板) 点検口 EPS DS 2,500 230 1,650 JR側スロープ(私道) 3,000 JR側 DN 隣地境界線 雨水管 A 屋内消火栓 1,500 △道路境界線 5 壁面開口 1階区画 飲食店舗 7,000 耐震壁 B 1 2,500 UP 壁面開口 ▽壁面境界 ▽道路境界線 8,000 建物外壁と道路境界の間は 造作物等規制があります 面積表 2階 172.26㎡( 52.11坪) 1階 205.14㎡( 62.05坪) 合計 377.40㎡(114.16坪) 8,000 3 2 2,600 1 コリドー通り側 東京高速道路 山下ビル 図面名称 1階平面図 建-1 一括 隣地境界線 避難用開口 900 二重壁(PB+ケイカル板) 点検口 点検口 避難器具設置(C工事) ▽延焼のおそれのある部分 屋内消火栓 2,070 DN 230 EPS 2,500 1,600 1,650 DS 5,000 JR側 A 21 15 2階 飲食店舗 室外機置場 使用可 ※設置場所制限あり 7,000 20 1,650 10 2,500 B 排煙窓オペレーター 上部 外倒し排煙窓 上部 外倒し排煙窓 7,375 8,000 8,000 3 面積表 2階 172.26㎡( 52.11坪) 1階 205.14㎡( 62.05坪) 合計 377.40㎡(114.16坪) 2 排煙窓オペレーター 625 2,600 1 コリドー通り側 東京高速道路 山下ビル 図面名称 2階平面図 建-2 一括 点検口 ▽延焼のおそれのある部分 二重壁(PB+ケイカル板) 点検口 EPS DS 2,500 230 1,650 JR側スロープ(私道) 3,000 JR側 DN 隣地境界線 雨水管 A 耐震壁 電灯幹線 CVT150 動力幹線 CVT200 屋内消火栓 1,500 300A(63KVA) 動力 350A(127KVA) △道路境界線 5 壁面開口 1階区画 飲食店舗 7,000 電気容量 電灯 B 1 2,500 UP 壁面開口 ▽壁面境界 ▽道路境界線 8,000 建物外壁と道路境界の間は 造作物等規制があります 8,000 3 2 2,600 1 コリドー通り側 東京高速道路 山下ビル 図面名称 1階平面図 電灯動力幹線 電-3 一括 点検口 ▽延焼のおそれのある部分 二重壁(PB+ケイカル板) 点検口 EPS DS 2,500 230 1,650 JR側スロープ(私道) 3,000 JR側 DN 隣地境界線 雨水管 A 耐震壁 屋内消火栓 1,500 △道路境界線 5 壁面開口 1階区画 飲食店舗 7,000 非常放送・自火報 B 1 2,500 UP 壁面開口 ▽壁面境界 ▽道路境界線 8,000 建物外壁と道路境界の間は 造作物等規制があります 8,000 3 2 2,600 1 コリドー通り側 東京高速道路 山下ビル 図面名称 1階平面図 防災 電-4 一括 隣地境界線 避難用開口 900 二重壁(PB+ケイカル板) 点検口 点検口 避難器具設置(C工事) ▽延焼のおそれのある部分 屋内消火栓 2,070 DN 230 EPS 非常放送・自火報 2,500 1,600 1,650 DS 5,000 JR側 A 21 15 2階 飲食店舗 室外機置場 使用可 ※設置場所制限あり 7,000 20 1,650 10 2,500 B 排煙窓オペレーター 上部 外倒し排煙窓 上部 外倒し排煙窓 7,375 8,000 8,000 3 2 排煙窓オペレーター 625 2,600 1 コリドー通り側 東京高速道路 山下ビル 図面名称 2階平面図 防災 電-5 一括 点検口 ▽延焼のおそれのある部分 二重壁(PB+ケイカル板) 点検口 EPS DS 2,500 230 1,650 JR側スロープ(私道) 3,000 JR側 DN 隣地境界線 雨水管 A 耐震壁 屋内消火栓 1,500 △道路境界線 5 壁面開口 1階区画 飲食店舗 7,000 TEL 光ケーブル B 1 2,500 UP 壁面開口 ▽壁面境界 ▽道路境界線 8,000 建物外壁と道路境界の間は 造作物等規制があります 8,000 3 2 2,600 1 コリドー通り側 東京高速道路 山下ビル 図面名称 1階平面図 弱電 電-6 一括 点検口 ▽延焼のおそれのある部分 二重壁(PB+ケイカル板) 点検口 EPS DS 2,500 230 1,650 JR側スロープ(私道) 3,000 JR側 DN 隣地境界線 雨水管 A 5 △道路境界線 壁面開口 1階区画 飲食店舗 7,000 耐震壁 屋内消火栓 1,500 消火栓配管 2Fへ立上り(50A) 1 B 消火栓配管 暗渠~立上り(50A) 2,500 UP 壁面開口 給水・排水・ガス立下げ範囲 給水・排水・ガス立下げ範囲 排水本管へ接続(BF暗渠内) ▽壁面境界 排水本管へ接続(BF暗渠内) 消火栓配管(BF暗渠内) 給水本管(BF暗渠内) ガス本管(BF暗渠内) ▽道路境界線 8,000 建物外壁と道路境界の間は 造作物等規制があります 3 8,000 2 外部排水桝 外部排水桝 2,600 1 コリドー通り側 東京高速道路 山下ビル 図面名称 1階平面図-給排水・ガス・消火栓 設-7 一括 隣地境界線 避難用開口 230 EPS 900 二重壁(PB+ケイカル板) 点検口 点検口 避難器具設置(C工事) ▽延焼のおそれのある部分 2,500 1,600 1,650 DS 5,000 JR側 屋内消火栓 2,070 A DN 21 20 2階 飲食店舗 室外機置場 使用可 ※設置場所制限あり 7,000 消火栓天井配管(50A) 15 1,650 10 消火栓配管立上り(50A) 2,500 B 排煙窓オペレーター 上部 外倒し排煙窓 上部 外倒し排煙窓 7,375 8,000 8,000 3 2 排煙窓オペレーター 625 2,600 1 コリドー通り側 東京高速道路 山下ビル 図面名称 2階平面図-給排水・ガス・消火栓 設-8 一括 隣地境界線 3,000 JR側スロープ(私道) DN 排気はJR側開口部から JR側 (厨房排気は外壁ダクト立上げ) ▽延焼のおそれのある部分 二重壁(PB+ケイカル板) 点検口 EPS DS 2,500 点検口 雨水管 A 5 △道路境界線 壁面開口 1階区画 飲食店舗 7,000 耐震壁 屋内消火栓 1,500 B 1 2,500 UP 壁面開口 ▽壁面境界 ▽道路境界線 8,000 建物外壁と道路境界の間は 造作物等規制があります 8,000 3 2 2,600 1 コリドー通り側 給気はコリドー側から 東京高速道路 山下ビル 図面名称 1階平面図-給排気 設-9 一括 隣地境界線 5,000 排気はJR側開口部から JR側 室外機配置図(参考) 900 二重壁(PB+ケイカル板) 点検口 点検口 避難器具設置(C工事) ▽延焼のおそれのある部分 2,500 EPS DS 500 1,600 230 (厨房排気は外壁ダクト立上げ) 870 屋内消火栓 2,070 A DN 700 21 15 2階 飲食店舗 室外機置場 使用可 ※設置場所制限あり 7,000 20 10 1,650 700 2,500 B 上部 外倒し排煙窓 上部 外倒し排煙窓 7,375 8,000 8,000 3 2 排煙窓オペレーター 500 排煙窓オペレーター 900 625 2,600 1 1,925 コリドー通り側 給気はコリドー側から 東京高速道路 山下ビル 図面名称 2階平面図-給排気 設-10
© Copyright 2026