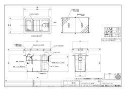
OP-T-R型 大型グリーストラップ FRP製

OP-T-R型 大型グリーストラップ FRP製
OP-T-R
ソケットタイプ・地中埋設・パイプ導入型・分離式
A
75
L
75
I
G
75
ࣔ
B
75
W
ࣽ
࣬
L1
W1
蓋(SS400)
J
受 枠(SUS304)
流入管 ソケット(PVC)
補強(SS400)
W.L
本体 5.0t
(FRP)
E
H
グリーストラップ
D
F
スライド板(FRP)
排出トラップ(PVC)
C
補強(PVC)
受篭・パンチング
(SUS304)
補強(SS400)
補強(SS400)
L
ޯ
W
13
●寸法表
型 式
OP-800T-SKR
OP-1000T-SKR
OP-1500T-SKR
OP-2000T-SKR
OP-3000T-SKR
L
1750
1900
2000
2200
2500
W
875
950
1000
1100
1250
H
950
1000
1300
1400
1500
A
1900
2050
2150
2350
2650
B
1025
1100
1150
1250
1400
C
600
650
850
950
1050
本 体 寸 法 ㎜
D
E
350
780
350
830
450
1100
450
1200
450
1300
●仕 様
型 式
OP-800T-SKR
OP-1000T-SKR
OP-1500T-SKR
OP-2000T-SKR
OP-3000T-SKR
F
170
170
200
200
200
G
155
180
180
200
225
I
155
165
180
200
225
J
50
50
65
65
65
L1
1880
2030
2160
2360
2660
W1
1005
1080
1160
1260
1410
本体質量
㎏
105
120
210
310
450
●注 意
本 体 許容流入流量
槽 数
実容量ℓ [ℓ/min]
800
600
4
1000
750
4
1500
750
4
2000
750
4
3000
750
4
流入管
口 径
150
150
200
200
200
排出管
口 径
150
200
200
200
200
蓋・受枠
蓋枚数 質量㎏
5
115
5
130
5
254
5
275
6
350
1.
は流入管方向、㋑ ㋺ ㋩ は排出管方向を示します。
ご注文の際は各方向をご指示ください。
2.蓋・受枠付です。
13-21