 
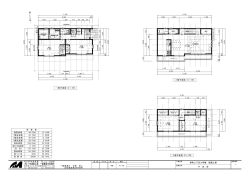
        9000 3000 床面積 木造+RC造 地下1階地上2階建 9000 1000 8000 3000 計画概要 1000 3000 3000 3000 B1階 75.00㎡(22.68坪) 敷地面積 448.77㎡ 1階 120.46㎡(36.43坪) 建築面積 2階 97.06㎡(29.36坪) 合計 292.52㎡(88.48坪) 8000 158.56㎡(47.96坪) 3000 35.34 % 6160 容積対象 241.52㎡(73.05坪) 53.82 % .46 道路境界線 15 9000 1800 7200 居間 15.0帖 4000 2000 5000 5000 UP 21000 バルコニー 収納 28.13 3000 吹抜 3000 5000 2500 ホール 23000 5000 吹抜 6500 隣地境界線 13.18 2000 ルーフテラス DN 21000 5000 28.13 5000 ドライエリア 洋室-3 16.6帖 吹抜 CL 洋室-1 11.9帖 WCL 14000 4800 4200 浴室 バルコニー 14000 3000 納戸 3.0帖 パントリー ユーティリティ 洋室-2 7.2帖 CL 6000 6000 洗濯パン 吹抜 9000 食堂 台所 21.3帖 隣地境界線 14.08 3000 14000 中庭 9000 隣地境界線 14.08 3000 DN 6000 1.35 隣地 隣地 境界 1000 1300 線 7.9 0 隣地境 界線 3000 4200 9300 3000 2500 6.23 隣地境 界線 3500 2300 1600 12000 4400 6.23 ■計画敷地面積 860.79㎡(260.38坪) ■用途地域 第1種低層住居専用地域(40/80) ■高度地区 第1種高度地区 最高高さ10m 1000 ■外壁の後退距離 1.0m 9300 ■防火地域 法22条指定区域 ■景観地区 2号地 448.77㎡ 135.75坪 2階 平面図 1/100 7.90 0.66 境界 線 2800 4.83 4.83 冷 0.66 21000 SCL 2500 UP ホール 23000 5000 玄関 5000 2000 車庫 6500 隣地境界線 13.18 4200 5000 .46 道路境界線 15 真 北 1階 平面図 1/100 ■緑の保全地区 ■宅地造成工事規制区域内 ■埋蔵文化財包蔵地内 城山・三条古墳群 地下1階 平面図 1/100 PROJECT. CODE No. 山芦屋町計画 TITLE. '14.07.07 SCALE. 平面図 株式会社 西田順紀アトリエ DATE. 1/200 一級建築士 №313314 西田順紀 No.
© Copyright 2025