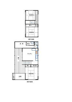
2730 910 3340 1820 910 3940 1820 610 910 2120 1820 6070 1820 910 3940 910 1820 610 300 1820 内法:1500 内法:1500 AW 06005 AW 06005 スベリダシ スベリダシ +300 3100 AW 16022 内法:2200 AW 16011 カウンター H:700 8.75㎡ 5460 3640 AW 02611 内法:現場合せ AW 16018 バルコニー 内法:現場合せ 洋室(A) (5.29帖) AW 16022 8.75㎡ H:900 AW 16018 クローゼット バルコニー AW 16011 2730 2730 13.24㎡ ホール 2990 910 AW 02611 1600 寝室 (8帖) 洋室(B) (5.29帖) 1820 収納 階段 便所 内法:現場合せ AW 15018 7.45㎡ 1820 28.56㎡ 和室4.5帖(大壁) DN 3185 LDK (17.25帖) 455 プリーツスクリーン 中段 ・枕棚 AW 02609 AW 02609 クローゼット AW 06011 AW 06011 可動棚 1820 1820 TV クローゼット 1365 650 ホール 3640 IHヒーター 7280 玄関 UP AW 06011 AW 06011 内法:1800 AW 02609 階段 2990 910 1820 1365 7280 4550 パントリー 廊下 可動棚 クローク 可動棚 便所 DS ウォークインクローゼット ウォークインクローゼット AW 02609 AW 02609 1820 PS 収納 ポーチ エコキュート UB 可動棚 3100 1820 洗面所 AW 02607 AW 02607 AW 06011 1820 3000 内法:1600 内法:1600 AW 06005 AW 06005 スベリダシ スベリダシ 1820 650 3640 3640 10010 3640 7280 2730 910 TN 10920 N 2階平面図(プレゼン用) 1/100 1階平面図(プレゼン用) 1/100 建設地(建築主) 工 事 名 称 セルリアンヒルズ前空台 NO.1 (トーシン住宅orトーシン建設)設計図 申請地 図 名 廿日市市大野字前空880-280 プレゼン平面図 年 月 日 H26.6.7 1階床面積(㎡/坪) 59.75 18.07 2階床面積(㎡/坪) 49.68 15.02 延べ床面積(㎡/坪) 109.43 33.10 建築面積(㎡/坪) 63.47 19.19 敷地面積(㎡/坪) 259.03 78.35 建蔽率 24.51 容積率 42.25 ( 株) ト ーシン建設一級建築士事務所 一級建築士第157715号 中 元 愼 吾 担当 設計 検印
© Copyright 2026