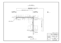
求積図(全体) S=1:400

座標求積図(全体)
求積図(全体) S=1:400
地 番 655-1外8筆
所有者
伊東市
NO
X
RM
RM
CA140
T-4
CA142
市道芹田・大原線
登記基準点
657-4
街区基準点
CA141
RM
C
C
C
1
RM
RM
2
24.42
81
8.
RM
651-8
24
TP
TP
25 5.28
26
5.41
6
28
4.48
34
1.82
623-2
伊東市
1.82
-114569.810
54230.747
5.19
6
-114569.576
54230.299
0.51
7
-114571.714
54228.686
2.68
8
-114579.008
54222.718
9.42
5.40
12
54207.272
4.08
13
-114601.085
54204.925
4.07
4
14
-114601.101
54204.509
0.42
15
-114577.470
54160.469
49.98
16
-114565.051
54166.820
13.95
17
-114548.888
54175.060
18.14
18
-114546.893
54171.047
4.48
19
-114541.077
54174.042
6.54
20
-114536.741
54176.095
4.80
21
-114538.772
54180.331
4.70
23
-114545.155
54193.243
14.40
24
-114549.353
54191.240
4.65
25
-114551.802
54196.066
5.41
26
-114551.920
54196.009
0.13
27
-114554.256
54200.743
5.28
5
T-A
市
CA146
道
桜
木
一
号
線
9.42
U
28
-114556.638
54205.602
5.41
1
-114539.808
54214.219
18.91
面積
地積
36
10
2801.5662585
2801.56

5.40
651-5
5
54209.709
9
フェンス
1.82
1.82
マーク
フェンス
11
4.08
13.95
シニアプラザ桜木
651-20
12
業 務 名 伊東市新保健福祉施設設計業務
4.07
RM
37
16
35
6.98
-114597.760
5.40
18.14
RM
8.81
54233.766
-114594.483
駐車場
655-6
54237.593
-114565.583
11
倉庫
655-1
伊東市
-114559.749
4
5.40
CA163
651-2
伊東市
3
9.42
8
651-4
共同浴場
24.42
54213.053
7
倉庫
54235.866
54216.532
657-1
伊東市
652-3
伊東市
651-9
17
18
5.41
-114551.106
-114590.242
3
0.51
27
2
-114586.113
625-4
伊東市
32
1
54214.219
9
5.19
651-7
伊東市
1.82
辺 長
-114539.808
6.98
19
23
0.13
マーク
651-16
6.54
T-2
4.80
651-17
14.40
31
Y
宅地・鉱泉地
10
9.42
4.70 21
20
4.65
RM
33
654
653
1.82
T-1
1.82
652-1
駐車場
1.82
651-1
30
651-13
651-14
651-15
18.91
RM
市
道
弥 マーク
生 TP
・
幸
線
U
2.68
RM
T-3
地目
15
CA171
49.98
13
2
14 0.4
U
CA147
市道桜木五号線
U
T-B
L
施工箇所名
図面の種類
縮
尺
伊東市桜木町二丁目地内
求積図(全体)
1:400
図面番号
U
事務所名
伊東市高齢者福祉課